МЫ СТРОИМ в самых востребованных локациях Пермского района - Фролы, Плишки, Вазелята, Ферма, Горный, Лобаново, Ванюки и непосредственно в черте города
ДОМА РАСПОЛОЖЕНЫ В ЧЕРТЕ ГОРОДА
Это прекрасный вариант жить в своем доме и пользоваться городской инфраструктурой
🏫 школа и детский сад
🛒 магазины
🏥 больницы
Дети самостоятельно могут ходить в школу, тренировки, кружки
Здесь не нужно выбирать между комфортом и удобством — всё уже рядом
Наши дома сдаются в формате «заезжай и живи»:
полная чистовая отделка 1 этажа
установлена мебель
никаких ремонтов, пыли и дополнительных расходов
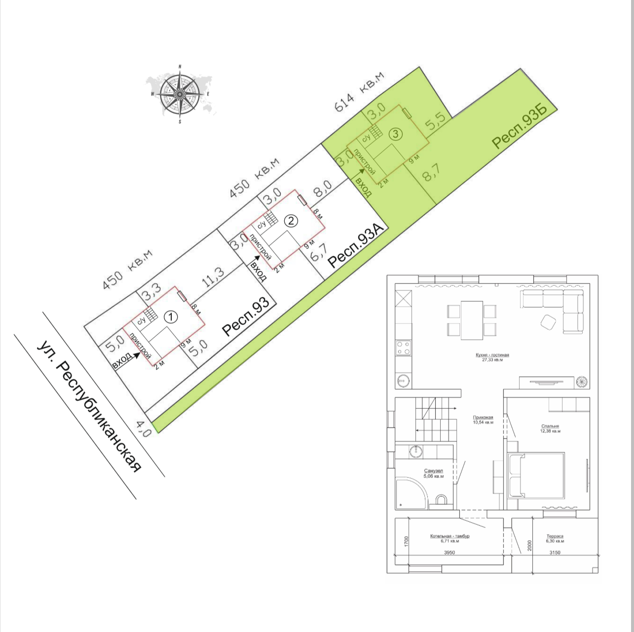
Проект дома идеально подходит для семьи с 2–3 детьми: удобная планировка, достаточно пространства для каждого и уютная общая зона для всей семьи.
Наши дома сдаются в формате «заезжай и живи»:
полная чистовая отделка 1 этажа
установлена мебель
никаких ремонтов, пыли и дополнительных расходов
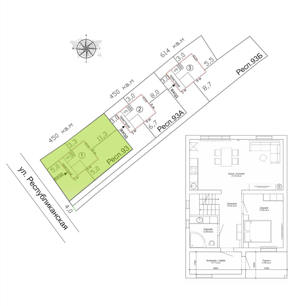
Проект дома идеально подходит для семьи с 2–3 детьми: удобная планировка, достаточно пространства для каждого и уютная общая зона для всей семьи.
Наши дома сдаются в формате «заезжай и живи»:
полная чистовая отделка 1 этажа
установлена мебель
никаких ремонтов, пыли и дополнительных расходов
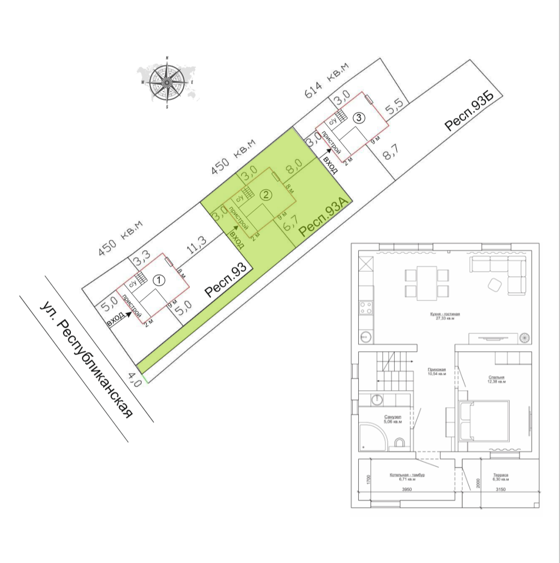
Проект дома идеально подходит для семьи с 2–3 детьми: удобная планировка, достаточно пространства для каждого и уютная общая зона для всей семьи.

НА РЫНКЕ СТРОИТЕЛЬСТВА С 2017г.

ПОСТРОИЛИ БОЛЕЕ 250 ДОМОВ

ПОЛНОЕ СОПРОВОЖДЕНИЕ СДЕЛКИ, ПОМОЩЬ С ИПОТЕКОЙ

РАБОТАЕМ ПО ВСЕМ ПРОГРАММАМ ГОСПОДДЕРЖКИ
В нашем офисе Вы можете согласовать лучшие ставки по ипотеке
Посмотрите, как будет выглядеть Ваш будущий дом
Заголовок окна

Погрузитесь в мир комфорта и семейного уюта с
Модус Строй
Главный принцип нашей работы — забота о клиентах. Прозрачность и доверие — основные критерии нашей деятельности в отношениях с клиентами. Безупречная репутация и сплоченная команда позволяют нам успешно развиваться совместно с единомышленниками, которые разделяют наши ценности.

ИП Котов Алексей Сергеевич
ИНН 590314696196
ОГРНИП 306590220900016
Строительство домов из газоблока с отделкой и мебелью в подарок
Политика конфиденциальности
Под персональной информацией понимаются данные, которые могут быть использованы для идентификации определенного лица либо связи с ним. От вас может быть запрошено предоставление вашей персональной информации в любой момент, когда вы связываетесь с нами. Ниже приведены некоторые примеры типов персональной информации, которую мы можем собирать, и как мы можем использовать такую информацию.
Мы не раскрываем полученную от Вас информацию третьим лицам.
В случае если необходимо — в соответствии с законом, судебным порядком, в судебном разбирательстве, и/или на основании публичных запросов или запросов от государственных органов на территории РФ — раскрыть вашу персональную информацию. Мы также можем раскрывать информацию о вас, если мы определим, что такое раскрытие необходимо или уместно в целях безопасности, поддержания правопорядка, или иных общественно важных случаях. В случае реорганизации, слияния или продажи мы можем передать собираемую нами персональную информацию соответствующему третьему лицу – правопреемнику.
Мы предпринимаем меры предосторожности — включая административные, технические и физические — для защиты вашей персональной информации от утраты, кражи, и недобросовестного использования, а также от несанкционированного доступа, раскрытия, изменения и уничтожения.
Данный сайт использует Cookie
Редактируемый текст